kilka zdjęć podstawowych:-)






Tą drogą szukamy osób, które budują własne "marzenia" w naszej okolicy tj. okolice Łukowa lub gdzieś w pobliżu:-)Szukamy bo miłoby było wymienić zdania na temet ekip budowlanych z naszych okolic, ustalić ceny wykonawstwa, odnaleźć najlepsze i najtańsze hutrownie materiałów itp.
Ponoć w "kupie" raźniej
!Tak więc zapraszamy.
U nas narazie cisza i spokój.projekt domu przechodzi adaptację (jednak całkiem sporo zmian niż zakładaliśmy).W sobotę spróbujemy zbić wc-cik z posiadanych desek,przewieźć go na działeczkę wraz z starymi pustakami od kochanego teścia
na posadowienie garażu blaszanego.
W międzyczasie jazda po hurtowniach, betoniarniach itp z zapytaniem o cenę![]()
Być może w następnym tygodniu ustalony będzie końcowy wygląd domku, więc pojeździmy do kliku ekip budowlanych. Wczoraj odesłaliśmy papierki z umowami do PGE. Zapewne w nastepnym tygodniu odeślą więc wpiszemy koszty.
I to by było w tym momencie na tyle.
Pozdrawiamy i miłego wekendu dla wszystkich inwestorów![]()
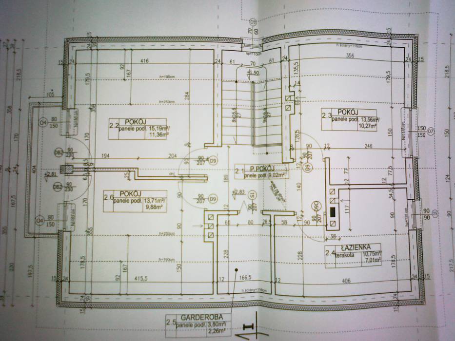
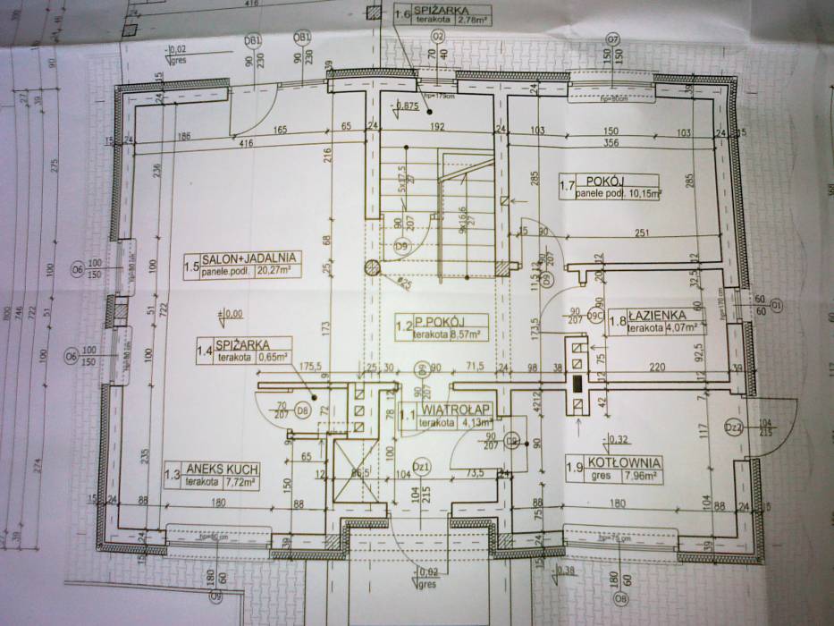
wczoraj na naszym ugorku odbyło się długie ale za to owocen spotkanie z Panem Andrzejem. domek został usytuowniony na działce, wybrno materiał na budowę itp. lecz najważniejsze są zmiany zaproponowane i w większości za naszą aprobatą zaakceptowane m.in. kotłownia od frontu z drzwiami od wiatrołapu oraz od zewnątrz, pokój na dole będzie od południa, schody z kaltką schodową, zmiana wielkości okien od frontu, brak okien połaciowych-większe okna w ścianie oraz inna forma okien balkonowych i wiele innych. spróbuję wszystko nanieść na paincie i wrzucić na blog.może mi się uda:-)bo nie mogę doczekać się gotowej wizualizacji Pana Andrzeja:-)
wczoraj podpisaliśmy wszelkiej maści papierki, które złoży i załatwi za nas:-) nasz kierownik budowy.obiecał że niebędzie to trwać dłużej jak 2 miesiące, więc na początku października planujmey wykonanie fundamentów.na razie jesteśmy pełni sił:-)oby ten piękny sen zbyt szybko się nie skończył:-)naczytałem się dużo o problemach z budową sieci wiodociągowej w podobnej sytuacji w której my sie znajujemy, lecz poraz kolejny siła spokoju Pana Andrzeja poprawiła mi humor:-)

Komentarze